820 PARK Avenue 15

$9,950,000
820 PARK Avenue 15, New York City, NY 10021
820 PARK Avenue 15

820 PARK Avenue 15

$9,950,000

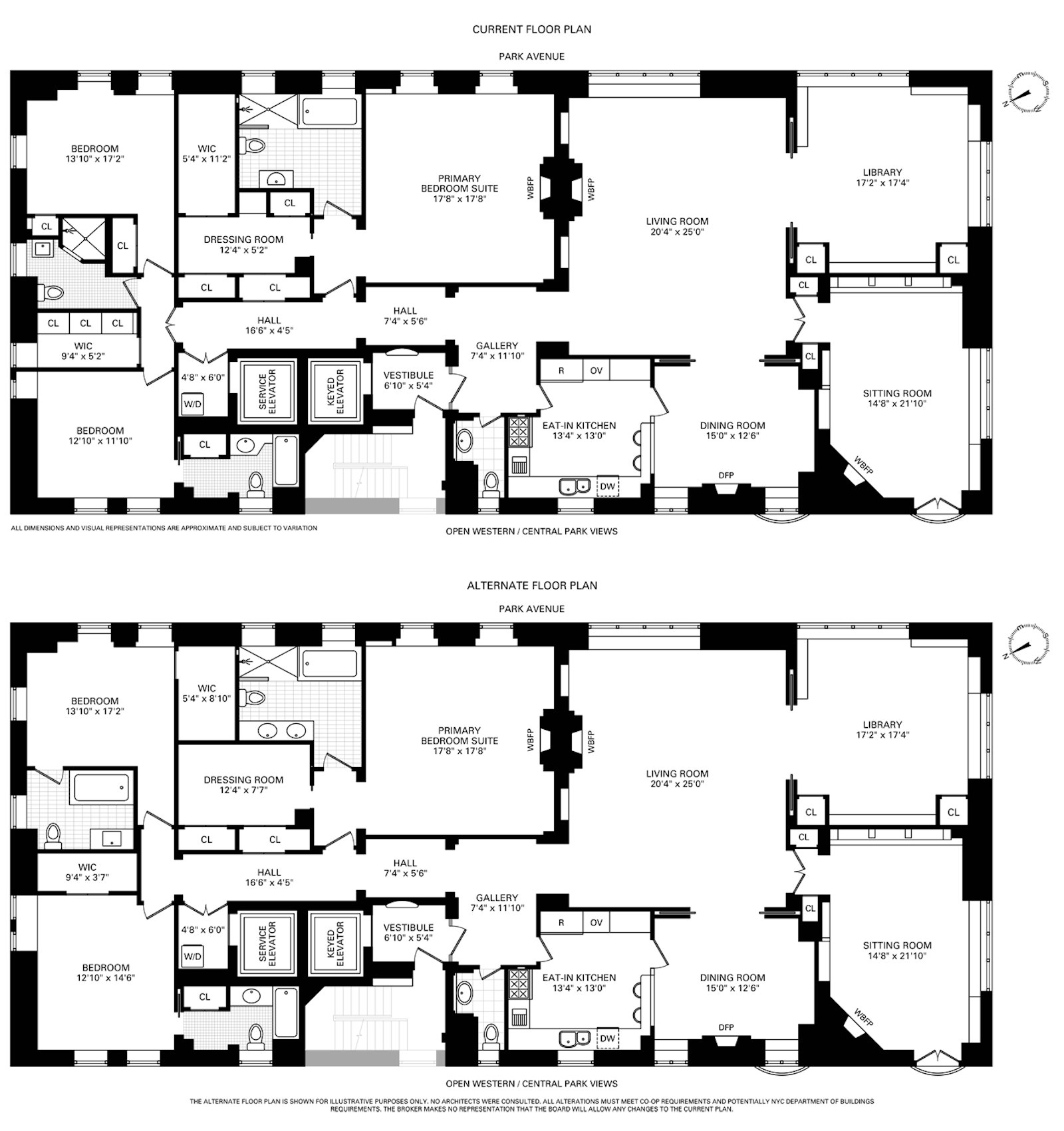
A truly exceptional offering of a grand full floor home boasting over 90 feet of Park Avenue frontage, with majestic exposures framed by large picture windows in every room. Flooded with sunlight throughout, the 15th Floor at 820 Park Avenue is a property offering a flawless classic layout, glorious proportions and wide open views both east and west rarely found on Park Avenue, all set atop a distinguished full-service cooperative on a prime corner of the Upper East Side.

Occupying the building's penultimate floor, this residence is entered through a private vestibule and a custom wrought-iron front door. Ceilings rise over 10 feet as sunlight guides you from the formal gallery into the home's south-facing entertaining wing with a stately living room at its core. The living room features wall-to-wall oversized picture windows facing east, showcasing gorgeous open views over Park Avenue and the city beyond. The first of three wood burning fireplaces anchors the room which is also enveloped in intricate picture molding and crown molding overhead. A pair of large pocket doors open from the living room into a handsome corner library bathed in sunlight pouring in through 7 picture windows exposed southeast over Park Avenue and East 75th Street. Also off the living room and adjacent to the library is a beautifully wood-paneled sitting room with a wood burning fireplace that commands the southwestern corner of the building's facade, featuring glorious open city views up 75th Street all the way to Central Park and the glorious buildings along Central Park West. Perfectly situated between the sitting room and a large windowed eat-in kitchen is a formal dining room, accessed from the living room through sculpted wooden pocket doors and also offering open western views. The kitchen is dressed in white marble and currently offers a pass-through dining counter open to the dining room, all stainless steel appliances including a 6-burner gas range/oven with a griddle and a vented hood, twin wall-mounted ovens by Thermador, a full-sized stainless steel Bosch dishwasher and a Subzero French-door style refrigerator/freezer with an ice maker. The entertaining areas are all served by a windowed powder room discreetly located off of the gallery.

The bedrooms are situated in their own dedicated wing, as is ideal. The expansive primary bedroom suite has massive proportions throughout and its own wood burning fireplace. There is a custom dressing room that can accommodate even the most extensive of wardrobes with an array of closets, shelving and draws and contains an additional huge walk-in closet over 11 feet deep. The en-suite primary bathroom is also enormous, currently housing a deep soaking spa bathtub and an oversized glass-enclosed stall shower and easily accommodating a double vanity as well. There are two additional corner bedrooms at the north end of the residence off of their own hall for enhanced privacy. One has a windowed en-suite bathroom with a tub, and the other is serviced by a windowed bathroom with a stall shower just off of the hall. Each could easily be configured as bedrooms each with their own en-suite full bathrooms and walk-in closets. Rounding out the bedroom wing is a separate service space containing a full-sized washer/dryer.

820 Park Avenue was built in 1926 and designed by the esteemed Prix de Rome-winning architect Henry Allan Jacobs. Residents enjoy white-glove privacy and a dedicated staff inclusive of a live-in resident manager and full-time doormen. The building's prime location places it moments from the finest boutiques, restaurants, art galleries and cultural institutions in Manhattan. Pets are welcome, and there is a 3% flip tax payable by the purchaser. Financing is considered case by case.
Daniella G. Schlisser
Daniella G. Schlisser Contact

Features & Amenities

Interior

Total Bedrooms 3
Total Bathrooms 4
Full Bathrooms 3
Half Bathrooms 1
Laundry Room Building None, In Unit
Fireplace Decorative
Other Interior Features Separate/Formal Dining Room

Exterior

Stories 15
Air Conditioning Other
Other Exterior Features None

Area & Lot

Status For Sale
MLS® ID RLS20062843
Type Co-Op
Year Built 1926
Neighborhood Park Avenue
View Description City, Park/Greenbelt

Financial

SALES PRICE $9,950,000
HOA Fees $14,724/mo
image

Schedule a Showing

I would love to show you my beautiful property. Please select your preferred date and time below. I will be in touch shortly to confirm your appointment.

Schedule a Showing

I would love to show you my beautiful property. Please select your preferred date and time below. I will be in touch shortly to confirm your appointment.
Thank you for your interest in 820 PARK Avenue 15, New York City, NY 10021. We are reviewing your request and will be in touch shortly!

Mortgage Calculator

Estimate your monthly mortgage payment, including the principal and interest, property taxes, and HOA. Adjust the values to generate a more accurate rate.
All estimates are provided for informational purposes only. Actual amounts may vary.
$0,000 Your Payment 20 15 65
$0,000 Your Payment

Park Avenue

Read more

Work With Daniella

Her drive to master each transaction on her client’s behalf has garnered her a fiercely loyal, multi-generational client list and a well-earned reputation as one of the best in the business. You'll see why.

Let's Connect